
金属化膜直流滤波电容器(铝壳)
查看PDF:C60_LBB60金属化膜直流滤波电容器(铝壳).pdf
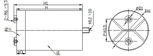
●外形图Outline Drawing


D=136mm



直流滤波电容器尺寸附加说明Additional description of dimensions
D=76mm | P=32mm;H3=16mm | D1=14mm;D2=17.5mm |
D1=12mm;D2=12mm | ||
D=86mm | P=32mm;H3=16mm | D1=14mm;D2=17.5mm |
D1=12mm;D2=15.5mm | ||
D=100mm | P=50mm;D1=16mm;D2=19.5mm;H3=26mm | |
D=116mm | ||
D=136mm | P=50mm;D1=16mm;H3=26/45mm | |
H3 can be changed in pursuance of customer’s request.(H3=45mm when rated voltage>1500Vdc) | ||
应用
太阳能/风能逆变器“DC-link”的平滑滤波;
逆变电源、UPS电源、大功率开关电源等母线
电压的平滑滤波;
大功率变频器、逆变焊机等电力电子设备的平滑过滤。
产品描述
引用标准GB/T 17702 idt IEC 61071,
GB/T 2693 idt IEC 60384-1;
特殊金属化聚丙烯膜无感卷绕而成;
产品用高性能阻燃环氧树脂封装于铝壳中;
应用具有自主知识产权的国家专利技术制造;
产品具有很低的ESR、能耐受大的有效值电流Irms和峰-峰值电流Ipp;
可承受较高的非周期性峰值电压Us;
可直接替代平滑滤波电路中的电解电容,为电控系统的长寿命工作提供可靠保障。
● 性能指标 Specifications
气候类别Climatic Category | D≤116mm:40/85/56 D=136mm:40/80/56 | |
工作温度范围 Temperature Range | D≤116mm: -40 ~ 85℃ ( θhs ≤85℃) D=136mm: -40 ~ 80℃ ( θhs ≤80℃) | |
储存温度范围 Storage temperature Rage | -40 ~ 85℃ | |
额定工作电压 Rated Voltage Un | 600Vdc~4000Vdc | |
电容量范围 Capacitance Range | 24μF~5600μF | |
电容量偏差 Capacitance Tolerance ΔC/C | J:±5% K:±10% | |
端子间电压 Voltage Proof Between Terminals UTT | 1.5Un ( 10s ,20℃±5℃ ) | |
端子与外壳间电压 Voltage Proof Between Terminals And Case UTC | Un<1500Vdc, 3000Vac (10s,50Hz,20℃±5℃ ) Un≥1500Vdc, ( | |
介质损耗角正切tagδ0 | 2×10-4 | |
IR×CN | ≥5000S (20℃,500Vdc,1min) | |
过电压 Over Voltage | 1.1Un (30% of on-load-dur) | |
1.15Un (30min/day) | ||
1.2Un (5min/day) | ||
1.3Un (1min/day) | ||
1.5Un (30ms every time ,1000times during the life of the capacitor) | ||
较高使用海拔 Max. Altitude | 2000m | |
较大电极扭矩Max.Torque of terminals | M6: 5N·m | M8: 6N·m |
较大安装扭矩Max.Torque of installation | 10N·m | |
安装Installation | 任意方向 Any Position | |
预期寿命Expected Lifetime | 100000h @Un ,θhs=70℃ | |
失效率Failure Rate | 50FIT | |
*如果海拔使用高度超过了2000m,应该考虑海拔对对流冷却和外绝缘的影响
● 典型应用线路 Typical Circuits Applications

产品编码说明 Part number system
● 16位产品代码如下:
1 | 2 | 3 | 4 | 5 | 6 | 7 | 8 | 9 | 10 | 11 | 12 | 13 | 14 | 15 | 16 |
C | 6 | 0 |
第1~3位 Digit 1 to 3 型号代码 Series code
C60=LBB60(铝壳)(Aluminum Case)
第4~6位 Digit 4 to 6 额定电压 Rated voltage
举例:163=101×63V=630V
216=102×16V=1600V
第7位 Digit 7 交流/直流电压 AC/DC
A=AC D=DC
第8~10位 Digit 8 to 10 标称容量 Rated capacitance value
举例:310=103×10pF=0.01μF
第11位 Digit 11 容量偏差 Capacitance tolerance
J=±5%, K=±10%,M=±20%
第12位 Digit 12 引出端型式 Terminal form
螺栓式 Male terminals = M
螺孔式Thread hole type =T
第13~15位 Digit 13 to15 引出端规格Specifications of terminal
举例: M6 P32=632
M8 P50=850
第16位 Digit 16 内部识别码 Internal use
预期寿命曲线Expected lifetime curve

● 技术参数Technical data (mm)
UN | CN | ESR | Ls | Rth | î | Imax | Dimension | Part number | ||||
40℃ | 50℃ | 60℃ | ΦD | H | H1 | |||||||
600 | 480 | 1.5 | 45 | 5.6 | 1560 | 70 | 65 | 55 | 76 | 95 | 101 | C60160D748****** |
650 | 1.9 | 50 | 4.7 | 1560 | 70 | 63 | 53 | 76 | 120 | 126 | C60160D765****** | |
780 | 2.2 | 55 | 4.6 | 1550 | 67 | 59 | 50 | 76 | 140 | 146 | C60160D778****** | |
820 | 1.5 | 40 | 4.3 | 3060 | 70 | 70 | 62 | 76 | 155 | 161 | C60160D782****** | |
950 | 1.5 | 45 | 4.2 | 3090 | 70 | 70 | 63 | 76 | 174 | 180 | C60160D795****** | |
650 | 1.2 | 45 | 5.1 | 2120 | 70 | 70 | 64 | 86 | 95 | 101 | C60160D765****** | |
880 | 1.5 | 50 | 4.7 | 2110 | 70 | 70 | 60 | 86 | 120 | 126 | C60160D788****** | |
1000 | 1.8 | 55 | 4.6 | 2070 | 70 | 65 | 55 | 86 | 136 | 142 | C60160D810****** | |
1100 | 1.7 | 55 | 4.6 | 2180 | 70 | 67 | 57 | 86 | 140 | 146 | C60160D811****** | |
1100 | 1.4 | 45 | 4.4 | 4110 | 70 | 70 | 64 | 86 | 155 | 161 | C60160D811****** | |
1300 | 1.4 | 45 | 4.3 | 4230 | 70 | 70 | 64 | 86 | 174 | 180 | C60160D813****** | |
2000 | 1.1 | 55 | 3 | 6510 | 70 | 70 | 70 | 86 | 252 | 258 | C60160D820****** | |
900 | 1.3 | 45 | 4.7 | 2900 | 70 | 70 | 58 | 100 | 95 | 100 | C60160D790****** | |
1200 | 1.4 | 50 | 4.1 | 2850 | 70 | 70 | 58 | 100 | 120 | 125 | C60160D812****** | |
1400 | 1.5 | 55 | 3.9 | 2870 | 70 | 70 | 58 | 100 | 136 | 141 | C60160D814****** | |
1500 | 1.6 | 55 | 3.8 | 2740 | 70 | 70 | 58 | 100 | 140 | 145 | C60160D815****** | |
1600 | 1 | 40 | 3.5 | 5920 | 70 | 70 | 70 | 100 | 155 | 160 | C60160D816****** | |
1800 | 1 | 45 | 3.2 | 5800 | 70 | 70 | 70 | 100 | 174 | 179 | C60160D818****** | |
1200 | 0.7 | 45 | 5.4 | 3900 | 80 | 80 | 80 | 116 | 95 | 100 | C60160D812****** | |
1600 | 1 | 50 | 5 | 3830 | 80 | 80 | 70 | 116 | 120 | 125 | C60160D815****** | |
2000 | 1.1 | 55 | 4.9 | 3960 | 80 | 80 | 67 | 116 | 140 | 145 | C60160D820****** | |
2100 | 0.8 | 40 | 3.6 | 7840 | 100 | 100 | 92 | 116 | 158 | 163 | C60160D821****** | |
2400 | 0.9 | 45 | 3.4 | 7810 | 100 | 100 | 90 | 116 | 174 | 179 | C60160D824****** | |
3000 | 0.8 | 50 | 2.7 | 11200 | 100 | 100 | 100 | 116 | 230 | 235 | C60160D830****** | |
5600 | 0.8 | 30 | 2 | 15940 | 100 | 100 | 100 | 136 | 295 | 300 | C60160D856****** | |
● 技术参数Technical data (mm)
UN | CN | ESR | Ls | Rth | î | Imax | Dimension | Part number | ||||
40℃ | 50℃ | 60℃ | ΦD | H | H1 | |||||||
700 | 360 | 1.6 | 45 | 5.6 | 1560 | 70 | 63 | 53 | 76 | 95 | 101 | C60170D736****** |
480 | 2.1 | 50 | 4.7 | 1530 | 68 | 60 | 50 | 76 | 120 | 126 | C60170D748****** | |
580 | 2.4 | 55 | 4.6 | 1530 | 64 | 56 | 48 | 76 | 140 | 146 | C60170D758****** | |
620 | 1.5 | 40 | 4.3 | 3090 | 70 | 70 | 62 | 76 | 155 | 161 | C60170D762****** | |
720 | 1.6 | 45 | 4.2 | 3120 | 70 | 70 | 61 | 76 | 174 | 180 | C60170D772****** | |
480 | 1.3 | 45 | 5.1 | 2080 | 70 | 70 | 61 | 86 | 95 | 101 | C60170D748****** | |
650 | 1.7 | 50 | 4.7 | 2080 | 70 | 66 | 56 | 86 | 120 | 126 | C60170D765****** | |
750 | 2 | 55 | 4.6 | 2070 | 70 | 62 | 52 | 86 | 136 | 142 | C60170D775****** | |
780 | 1.9 | 55 | 4.6 | 2060 | 70 | 63 | 53 | 86 | 140 | 146 | C60170D778****** | |
820 | 1.4 | 40 | 4.4 | 4080 | 70 | 70 | 64 | 86 | 155 | 161 | C60170D782****** | |
950 | 1.5 | 45 | 4.3 | 4120 | 70 | 70 | 62 | 86 | 174 | 180 | C60170D795****** | |
1500 | 1.1 | 55 | 3 | 6500 | 70 | 70 | 70 | 86 | 252 | 258 | C60170D815****** | |
650 | 1.4 | 45 | 4.7 | 2710 | 70 | 69 | 56 | 100 | 95 | 100 | C60170D765****** | |
900 | 1.5 | 50 | 4.1 | 2760 | 70 | 69 | 56 | 100 | 120 | 125 | C60170D790****** | |
1000 | 1.7 | 55 | 3.9 | 2650 | 70 | 67 | 55 | 100 | 136 | 141 | C60170D810****** | |
1100 | 1.7 | 55 | 3.8 | 2790 | 70 | 68 | 56 | 100 | 140 | 145 | C60170D811****** | |
1100 | 1 | 40 | 3.5 | 5260 | 70 | 70 | 70 | 100 | 155 | 160 | C60170D811****** | |
1300 | 1.1 | 45 | 3.2 | 5420 | 70 | 70 | 70 | 100 | 174 | 179 | C60170D813****** | |
920 | 0.7 | 45 | 5.4 | 3990 | 80 | 80 | 80 | 116 | 95 | 100 | C60170D792****** | |
1200 | 1 | 50 | 5 | 3830 | 80 | 80 | 70 | 116 | 120 | 125 | C60170D812****** | |
1500 | 1.1 | 55 | 4.9 | 3950 | 80 | 80 | 68 | 116 | 140 | 145 | C60170D815****** | |
1500 | 0.8 | 40 | 3.6 | 7460 | 100 | 100 | 93 | 116 | 158 | 163 | C60170D815****** | |
1800 | 1 | 45 | 3.4 | 7800 | 100 | 100 | 85 | 116 | 174 | 179 | C60170D818****** | |
2300 | 0.8 | 50 | 2.7 | 11440 | 100 | 100 | 100 | 116 | 230 | 235 | C60170D823****** | |
4200 | 0.8 | 60 | 2 | 15920 | 100 | 100 | 100 | 136 | 295 | 300 | C60170D842****** | |
● 技术参数Technical data (mm)
UN | CN | ESR | Ls | Rth | î | Imax | Dimension | Part number | ||||
40℃ | 50℃ | 60℃ | ΦD | H | H1 | |||||||
800 | 290 | 1.7 | 45 | 5.6 | 1530 | 69 | 61 | 51 | 76 | 95 | 101 | C60180D729****** |
400 | 2.2 | 50 | 4.7 | 1530 | 66 | 58 | 49 | 76 | 120 | 126 | C60180D740****** | |
480 | 2.5 | 55 | 4.6 | 1560 | 63 | 55 | 47 | 76 | 140 | 146 | C60180D748****** | |
480 | 1.6 | 40 | 4.3 | 1540 | 70 | 70 | 60 | 76 | 155 | 161 | C60180D748****** | |
560 | 1.7 | 45 | 4.2 | 2910 | 70 | 70 | 59 | 76 | 174 | 180 | C60180D756****** | |
380 | 1.4 | 45 | 5.1 | 2960 | 70 | 70 | 59 | 86 | 95 | 101 | C60180D738****** | |
520 | 1.8 | 50 | 4.7 | 2010 | 70 | 64 | 54 | 86 | 120 | 126 | C60180D752****** | |
580 | 2 | 55 | 4.6 | 2020 | 70 | 62 | 52 | 86 | 136 | 142 | C60180D758****** | |
630 | 2.1 | 55 | 4.6 | 1950 | 68 | 60 | 51 | 86 | 140 | 146 | C60180D763****** | |
650 | 1.5 | 40 | 4.4 | 2030 | 70 | 70 | 62 | 86 | 155 | 161 | C60180D765****** | |
750 | 1.6 | 45 | 4.3 | 3940 | 70 | 70 | 60 | 86 | 174 | 180 | C60180D775****** | |
1100 | 1.2 | 55 | 3 | 3960 | 70 | 70 | 70 | 86 | 252 | 258 | C60180D811****** | |
500 | 1.4 | 45 | 4.7 | 2620 | 70 | 67 | 55 | 100 | 95 | 100 | C60180D750****** | |
700 | 1.6 | 50 | 4.1 | 2700 | 70 | 67 | 55 | 100 | 120 | 125 | C60180D770****** | |
800 | 1.8 | 55 | 3.9 | 2660 | 70 | 66 | 54 | 100 | 136 | 141 | C60180D780****** | |
850 | 1.8 | 55 | 3.8 | 2700 | 70 | 66 | 54 | 100 | 140 | 145 | C60180D785****** | |
900 | 1.1 | 40 | 3.5 | 5400 | 70 | 70 | 70 | 100 | 155 | 160 | C60180D790****** | |
1000 | 1.1 | 45 | 3.2 | 5230 | 70 | 70 | 70 | 100 | 174 | 179 | C60180D810****** | |
720 | 0.9 | 45 | 5.4 | 3800 | 80 | 80 | 71 | 116 | 95 | 100 | C60180D720****** | |
980 | 1.2 | 50 | 5 | 3810 | 80 | 76 | 64 | 116 | 120 | 125 | C60180D798****** | |
1200 | 1.4 | 55 | 4.9 | 3860 | 80 | 71 | 60 | 116 | 140 | 145 | C60180D812****** | |
1200 | 0.9 | 40 | 3.6 | 7280 | 100 | 100 | 87 | 116 | 158 | 163 | C60180D812****** | |
1500 | 1.1 | 45 | 3.4 | 7920 | 100 | 96 | 81 | 116 | 174 | 179 | C60180D815****** | |
1800 | 0.8 | 50 | 2.7 | 10910 | 100 | 100 | 100 | 116 | 230 | 235 | C60180D818****** | |
3200 | 0.8 | 60 | 2 | 14780 | 100 | 100 | 100 | 136 | 295 | 300 | C60180D832****** | |
● 技术参数Technical data (mm)
UN | CN | ESR | Ls | Rth | î | Imax | Dimension | Part number | ||||
40℃ | 50℃ | 60℃ | ΦD | H | H1 | |||||||
900 | 290 | 2 | 45 | 5.6 | 1530 | 63 | 56 | 47 | 76 | 95 | 101 | C60190D729****** |
400 | 2.6 | 50 | 4.7 | 1560 | 61 | 54 | 45 | 76 | 120 | 126 | C60190D740****** | |
480 | 2.9 | 55 | 4.6 | 1540 | 58 | 51 | 43 | 76 | 140 | 146 | C60190D748****** | |
480 | 1.7 | 40 | 4.3 | 2910 | 70 | 69 | 58 | 76 | 155 | 161 | C60190D748****** | |
560 | 1.8 | 45 | 4.2 | 2960 | 70 | 68 | 58 | 76 | 174 | 180 | C60190D756****** | |
380 | 1.6 | 45 | 5.1 | 2010 | 70 | 65 | 55 | 86 | 95 | 101 | C60190D738****** | |
520 | 2.1 | 50 | 4.7 | 2020 | 68 | 60 | 50 | 86 | 120 | 126 | C60190D752****** | |
580 | 2.2 | 55 | 4.6 | 1950 | 67 | 59 | 50 | 86 | 136 | 142 | C60190D758****** | |
630 | 2.4 | 55 | 4.6 | 2030 | 64 | 56 | 48 | 86 | 140 | 146 | C60190D763****** | |
650 | 1.5 | 40 | 4.4 | 3940 | 70 | 70 | 62 | 86 | 155 | 161 | C60190D765****** | |
750 | 1.6 | 45 | 4.3 | 3960 | 70 | 70 | 60 | 86 | 174 | 180 | C60190D775****** | |
1100 | 1.3 | 55 | 3 | 5810 | 70 | 70 | 70 | 86 | 252 | 258 | C60190D811****** | |
500 | 1.4 | 45 | 4.7 | 2620 | 70 | 67 | 55 | 100 | 95 | 100 | C60190D750****** | |
700 | 1.6 | 50 | 4.1 | 2700 | 70 | 67 | 55 | 100 | 120 | 125 | C60190D770****** | |
800 | 1.8 | 55 | 3.9 | 2660 | 70 | 66 | 54 | 100 | 136 | 141 | C60190D780****** | |
850 | 1.8 | 55 | 3.8 | 2700 | 70 | 66 | 54 | 100 | 140 | 145 | C60190D785****** | |
900 | 1.1 | 40 | 3.5 | 5400 | 70 | 70 | 70 | 100 | 155 | 160 | C60190D790****** | |
1000 | 1.1 | 45 | 3.2 | 5230 | 70 | 70 | 70 | 100 | 174 | 179 | C60190D810****** | |
720 | 0.9 | 45 | 5.4 | 3800 | 80 | 80 | 71 | 116 | 95 | 100 | C60190D772****** | |
980 | 1.2 | 50 | 5 | 3810 | 80 | 76 | 64 | 116 | 120 | 125 | C60190D798****** | |
1200 | 1.4 | 55 | 4.9 | 3860 | 80 | 71 | 60 | 116 | 140 | 145 | C60190D812****** | |
1200 | 0.9 | 40 | 3.6 | 7280 | 100 | 100 | 87 | 116 | 158 | 163 | C60190D812****** | |
1500 | 1.1 | 45 | 3.4 | 7920 | 100 | 96 | 81 | 116 | 174 | 179 | C60190D815****** | |
1800 | 0.8 | 50 | 2.7 | 10910 | 100 | 100 | 100 | 116 | 230 | 235 | C60190D818****** | |
3200 | 0.8 | 60 | 2 | 14780 | 100 | 100 | 100 | 136 | 295 | 300 | C60190D832****** | |
● 技术参数Technical data (mm)
UN | CN | ESR | Ls | Rth | î | Imax | Dimension | Part number | ||||
40℃ | 50℃ | 60℃ | ΦD | H | H1 | |||||||
1000 | 220 | 2.2 | 45 | 5.6 | 1460 | 60 | 53 | 45 | 76 | 95 | 101 | C60210D722****** |
300 | 2.9 | 50 | 4.7 | 1460 | 57 | 51 | 43 | 76 | 120 | 126 | C60210D730****** | |
360 | 3.3 | 55 | 4.6 | 1450 | 54 | 48 | 41 | 76 | 140 | 146 | C60210D736****** | |
360 | 1.9 | 40 | 4.3 | 2740 | 70 | 65 | 55 | 76 | 155 | 161 | C60210D736****** | |
420 | 2 | 45 | 4.2 | 2780 | 70 | 65 | 55 | 76 | 174 | 180 | C60210D742****** | |
290 | 1.8 | 45 | 5.1 | 1920 | 70 | 62 | 52 | 86 | 95 | 101 | C60210D729****** | |
400 | 2.3 | 50 | 4.7 | 1950 | 65 | 57 | 48 | 86 | 120 | 126 | C60210D740****** | |
470 | 2.2 | 55 | 4.6 | 1980 | 67 | 59 | 50 | 86 | 136 | 142 | C60210D747****** | |
480 | 2.6 | 55 | 4.6 | 1930 | 61 | 54 | 46 | 86 | 140 | 146 | C60210D748****** | |
500 | 1.6 | 40 | 4.4 | 3800 | 70 | 70 | 60 | 86 | 155 | 161 | C60210D750****** | |
560 | 1.7 | 45 | 4.3 | 3710 | 70 | 69 | 58 | 86 | 174 | 180 | C60210D756****** | |
900 | 1.3 | 55 | 3 | 5960 | 70 | 70 | 70 | 86 | 252 | 258 | C60210D790****** | |
380 | 1.5 | 45 | 4.7 | 2490 | 70 | 65 | 53 | 100 | 95 | 100 | C60210D738****** | |
500 | 1.8 | 50 | 4.1 | 2410 | 70 | 64 | 52 | 100 | 120 | 125 | C60210D750****** | |
600 | 1.9 | 55 | 3.9 | 2500 | 70 | 63 | 52 | 100 | 136 | 141 | C60210D760****** | |
650 | 1.9 | 55 | 3.8 | 2590 | 70 | 64 | 52 | 100 | 140 | 145 | C60210D765****** | |
650 | 1.1 | 40 | 3.5 | 4890 | 70 | 70 | 70 | 100 | 155 | 160 | C60210D765****** | |
780 | 1.1 | 45 | 3.2 | 5110 | 70 | 70 | 70 | 100 | 174 | 179 | C60210D778****** | |
540 | 1 | 45 | 5.4 | 3570 | 80 | 80 | 68 | 116 | 95 | 100 | C60210D754****** | |
740 | 1.4 | 50 | 5 | 3610 | 80 | 70 | 59 | 116 | 120 | 125 | C60210D774****** | |
900 | 1.5 | 55 | 4.9 | 3620 | 78 | 69 | 58 | 116 | 140 | 145 | C60210D790****** | |
900 | 0.95 | 40 | 3.6 | 6840 | 100 | 100 | 85 | 116 | 158 | 163 | C60210D790****** | |
1100 | 1.2 | 45 | 3.4 | 7280 | 100 | 92 | 78 | 116 | 174 | 179 | C60210D811****** | |
1400 | 0.9 | 50 | 2.7 | 10630 | 100 | 100 | 100 | 116 | 230 | 235 | C60210D814****** | |
2500 | 0.9 | 60 | 2 | 14470 | 100 | 100 | 100 | 136 | 295 | 300 | C60210D825****** | |
● 技术参数Technical data (mm)
UN | CN | ESR | Ls | Rth | î | Imax | Dimension | Part number | ||||
40℃ | 50℃ | 60℃ | ΦD | H | H1 | |||||||
1100 | 180 | 2.3 | 45 | 5.6 | 1400 | 59 | 52 | 44 | 76 | 95 | 101 | C60211D718****** |
250 | 3 | 50 | 4.7 | 1430 | 56 | 50 | 42 | 76 | 120 | 126 | C60211D725****** | |
300 | 3.5 | 55 | 4.6 | 1420 | 53 | 47 | 39 | 76 | 140 | 146 | C60211D730****** | |
310 | 1.9 | 40 | 4.3 | 2770 | 70 | 65 | 55 | 76 | 155 | 161 | C60211D731****** | |
360 | 2 | 45 | 4.2 | 2800 | 70 | 65 | 55 | 76 | 174 | 180 | C60211D736****** | |
240 | 1.9 | 45 | 5.1 | 1870 | 68 | 60 | 51 | 86 | 95 | 101 | C60211D724****** | |
330 | 2.4 | 50 | 4.7 | 1890 | 63 | 56 | 47 | 86 | 120 | 126 | C60211D733****** | |
420 | 2.3 | 55 | 4.6 | 2080 | 65 | 58 | 49 | 86 | 136 | 142 | C60211D742****** | |
420 | 1.7 | 40 | 4.4 | 3750 | 70 | 63 | 52 | 86 | 155 | 161 | C60211D742****** | |
500 | 1.8 | 45 | 4.3 | 3730 | 70 | 67 | 57 | 86 | 174 | 180 | C60211D750****** | |
750 | 1.3 | 55 | 3 | 5840 | 70 | 70 | 70 | 86 | 252 | 258 | C60211D775****** | |
350 | 1.5 | 45 | 4.7 | 2640 | 70 | 65 | 53 | 100 | 95 | 100 | C60211D735****** | |
450 | 1.8 | 50 | 4.1 | 2500 | 70 | 63 | 51 | 100 | 120 | 125 | C60211D745****** | |
520 | 2 | 55 | 3.9 | 2500 | 70 | 62 | 50 | 100 | 136 | 141 | C60211D752****** | |
550 | 2.1 | 55 | 3.8 | 2520 | 70 | 62 | 51 | 100 | 140 | 145 | C60211D755****** | |
580 | 1.1 | 40 | 3.5 | 5020 | 70 | 70 | 70 | 100 | 155 | 160 | C60211D758****** | |
650 | 1.2 | 45 | 3.2 | 4900 | 70 | 70 | 70 | 100 | 174 | 179 | C60211D765****** | |
450 | 1 | 45 | 5.4 | 3500 | 80 | 80 | 68 | 116 | 95 | 100 | C60211D745****** | |
620 | 1.4 | 50 | 5 | 3550 | 80 | 70 | 59 | 116 | 120 | 125 | C60211D762****** | |
750 | 1.6 | 55 | 4.9 | 3550 | 75 | 66 | 56 | 116 | 140 | 145 | C60211D775****** | |
780 | 0.9 | 40 | 3.6 | 6960 | 100 | 100 | 85 | 116 | 158 | 163 | C60211D785****** | |
920 | 1.1 | 45 | 3.4 | 7150 | 100 | 96 | 81 | 116 | 174 | 179 | C60211D792****** | |
1200 | 0.9 | 50 | 2.7 | 10710 | 100 | 100 | 100 | 116 | 230 | 235 | C60211D812****** | |
2200 | 0.9 | 60 | 2 | 14960 | 100 | 100 | 100 | 136 | 295 | 300 | C60211D822****** | |
● 技术参数Technical data (mm)
UN | CN | ESR | Ls | Rth | î | Imax | Dimension | Part number | ||||
40℃ | 50℃ | 60℃ | ΦD | H | H1 | |||||||
1200 | 140 | 2.7 | 45 | 5.6 | 1330 | 55 | 48 | 41 | 76 | 95 | 101 | C60212D714****** |
200 | 3.4 | 50 | 4.7 | 1400 | 53 | 47 | 40 | 76 | 120 | 126 | C60212D720****** | |
240 | 3.9 | 55 | 4.6 | 1380 | 50 | 44 | 37 | 76 | 140 | 146 | C60212D724****** | |
240 | 2 | 40 | 4.3 | 2630 | 70 | 64 | 54 | 76 | 155 | 161 | C60212D724****** | |
280 | 2.1 | 45 | 4.2 | 2670 | 70 | 63 | 53 | 76 | 174 | 180 | C60212D728****** | |
190 | 2.1 | 45 | 5.1 | 1810 | 65 | 57 | 48 | 86 | 95 | 101 | C60212D719****** | |
260 | 2.7 | 50 | 4.7 | 1810 | 60 | 53 | 44 | 86 | 120 | 126 | C60212D726****** | |
320 | 2.5 | 55 | 4.6 | 1930 | 63 | 55 | 47 | 86 | 136 | 142 | C60212D732****** | |
330 | 3 | 55 | 4.6 | 1900 | 57 | 50 | 43 | 86 | 140 | 146 | C60212D733****** | |
330 | 1.8 | 40 | 4.4 | 3610 | 70 | 66 | 56 | 86 | 155 | 161 | C60212D733****** | |
380 | 1.9 | 45 | 4.3 | 3610 | 70 | 65 | 55 | 86 | 174 | 180 | C60212D738****** | |
580 | 1.5 | 55 | 3 | 5520 | 70 | 70 | 70 | 86 | 252 | 258 | C60212D758****** | |
250 | 1.7 | 45 | 4.7 | 2320 | 70 | 61 | 50 | 100 | 95 | 100 | C60212D725****** | |
350 | 2 | 50 | 4.1 | 2390 | 70 | 61 | 50 | 100 | 120 | 125 | C60212D735****** | |
400 | 2.2 | 55 | 3.9 | 2360 | 69 | 59 | 49 | 100 | 136 | 141 | C60212D740****** | |
420 | 2.2 | 55 | 3.8 | 2370 | 69 | 59 | 49 | 100 | 140 | 145 | C60212D742****** | |
450 | 1.2 | 40 | 3.5 | 4790 | 70 | 70 | 70 | 100 | 155 | 160 | C60212D745****** | |
500 | 1.2 | 45 | 3.2 | 4640 | 70 | 70 | 70 | 100 | 174 | 179 | C60212D750****** | |
360 | 1.1 | 45 | 5.4 | 3420 | 80 | 76 | 64 | 116 | 95 | 100 | C60212D736****** | |
500 | 1.6 | 50 | 5 | 3490 | 75 | 66 | 55 | 116 | 120 | 125 | C60212D750****** | |
600 | 1.8 | 55 | 4.9 | 3450 | 71 | 63 | 53 | 116 | 140 | 145 | C60212D760****** | |
620 | 1 | 40 | 3.6 | 6780 | 100 | 98 | 83 | 116 | 158 | 163 | C60212D762****** | |
720 | 1.2 | 45 | 3.4 | 6740 | 100 | 92 | 78 | 116 | 174 | 179 | C60212D772****** | |
950 | 0.9 | 50 | 2.7 | 10210 | 100 | 100 | 100 | 116 | 230 | 235 | C60212D795****** | |
1700 | 0.9 | 60 | 2 | 13920 | 100 | 100 | 100 | 136 | 295 | 300 | C60212D817****** | |
● 技术参数Technical data (mm)
UN | CN | ESR | Ls | Rth | î | Imax | Dimension | Part number | ||||
40℃ | 50℃ | 60℃ | ΦD | H | H1 | |||||||
1300 | 120 | 2.9 | 45 | 5.6 | 1310 | 53 | 46 | 39 | 76 | 95 | 101 | C60213D712****** |
170 | 3.7 | 50 | 4.7 | 1360 | 51 | 45 | 38 | 76 | 120 | 126 | C60213D717****** | |
210 | 4.1 | 55 | 4.6 | 1390 | 49 | 43 | 36 | 76 | 140 | 146 | C60213D721****** | |
210 | 2.1 | 40 | 4.3 | 2640 | 70 | 62 | 53 | 76 | 155 | 161 | C60213D721****** | |
240 | 2.3 | 45 | 4.2 | 2620 | 68 | 60 | 51 | 76 | 174 | 180 | C60213D724****** | |
170 | 2.2 | 45 | 5.1 | 1850 | 63 | 56 | 47 | 86 | 95 | 101 | C60213D717****** | |
230 | 2.8 | 50 | 4.7 | 1840 | 58 | 52 | 44 | 86 | 120 | 126 | C60213D723****** | |
270 | 2.8 | 55 | 4.6 | 1860 | 59 | 52 | 44 | 86 | 136 | 142 | C60213D727****** | |
270 | 3.3 | 55 | 4.6 | 1780 | 54 | 48 | 41 | 86 | 140 | 146 | C60213D727****** | |
280 | 1.8 | 40 | 4.4 | 3510 | 70 | 66 | 56 | 86 | 155 | 161 | C60213D728****** | |
320 | 1.9 | 45 | 4.3 | 3490 | 70 | 65 | 55 | 86 | 174 | 180 | C60213D732****** | |
520 | 1.5 | 55 | 3 | 5670 | 70 | 70 | 67 | 86 | 252 | 258 | C60213D752****** | |
210 | 1.8 | 45 | 4.7 | 2270 | 69 | 60 | 49 | 100 | 95 | 100 | C60213D721****** | |
280 | 2.1 | 50 | 4.1 | 2230 | 67 | 58 | 48 | 100 | 120 | 125 | C60213D728****** | |
330 | 2.3 | 55 | 3.9 | 2270 | 66 | 57 | 47 | 100 | 136 | 141 | C60213D733****** | |
360 | 2.3 | 55 | 3.8 | 2370 | 67 | 58 | 47 | 100 | 140 | 145 | C60213D736****** | |
380 | 1.2 | 4 | 3.5 | 4720 | 70 | 70 | 69 | 100 | 155 | 160 | C60213D738****** | |
420 | 1.3 | 45 | 3.2 | 4540 | 70 | 70 | 70 | 100 | 174 | 179 | C60213D742****** | |
320 | 1.2 | 45 | 5.4 | 3490 | 80 | 73 | 62 | 116 | 95 | 100 | C60213D732****** | |
430 | 1.6 | 50 | 5 | 3440 | 75 | 66 | 55 | 116 | 120 | 125 | C60213D743****** | |
520 | 1.8 | 55 | 4.9 | 3430 | 71 | 63 | 53 | 116 | 140 | 145 | C60213D752****** | |
540 | 1 | 40 | 3.6 | 6770 | 100 | 98 | 83 | 116 | 158 | 163 | C60213D754****** | |
630 | 1.2 | 45 | 3.4 | 6760 | 100 | 92 | 78 | 116 | 174 | 179 | C60213D763****** | |
820 | 0.9 | 50 | 2.7 | 10100 | 100 | 100 | 100 | 116 | 230 | 235 | C60213D782****** | |
1500 | 1 | 60 | 2 | 14080 | 100 | 100 | 100 | 136 | 295 | 300 | C60213D815****** | |
● 技术参数Technical data (mm)
UN | CN | ESR | Ls | Rth | î | Imax | Dimension | Part number | ||||
40℃ | 50℃ | 60℃ | ΦD | H | H1 | |||||||
1400 | 100 | 3.1 | 45 | 5.6 | 1260 | 51 | 45 | 38 | 76 | 95 | 101 | C60214D710****** |
140 | 4 | 50 | 4.7 | 1290 | 49 | 43 | 36 | 76 | 120 | 126 | C60214D714****** | |
170 | 4.6 | 55 | 4.6 | 1290 | 46 | 41 | 34 | 76 | 140 | 146 | C60214D717****** | |
170 | 2.3 | 40 | 4.3 | 2460 | 67 | 59 | 50 | 76 | 155 | 161 | C60214D717****** | |
200 | 2.4 | 45 | 4.2 | 2520 | 67 | 59 | 50 | 76 | 174 | 180 | C60214D720****** | |
140 | 2.4 | 45 | 5.1 | 1760 | 61 | 53 | 45 | 86 | 95 | 101 | C60214D714****** | |
190 | 3.1 | 50 | 4.7 | 1750 | 56 | 49 | 41 | 86 | 120 | 126 | C60214D719****** | |
230 | 2.9 | 55 | 4.6 | 1800 | 58 | 51 | 43 | 86 | 136 | 142 | C60214D723****** | |
240 | 1.96 | 40 | 4.4 | 3470 | 70 | 65 | 55 | 86 | 155 | 161 | C60214D724****** | |
270 | 2.1 | 45 | 4.3 | 3400 | 70 | 62 | 53 | 86 | 174 | 180 | C60214D727****** | |
420 | 1.5 | 55 | 3 | 5210 | 70 | 70 | 70 | 86 | 252 | 258 | C60214D742****** | |
180 | 1.8 | 45 | 4.7 | 2240 | 68 | 59 | 48 | 100 | 95 | 100 | C60214D718****** | |
250 | 2.2 | 50 | 4.1 | 2300 | 67 | 58 | 47 | 100 | 120 | 125 | C60214D725****** | |
290 | 2.4 | 55 | 3.9 | 2300 | 65 | 57 | 46 | 100 | 136 | 141 | C60214D729****** | |
320 | 1.2 | 40 | 3.5 | 4580 | 70 | 70 | 68 | 100 | 155 | 160 | C60214D732****** | |
360 | 1.3 | 45 | 3.2 | 4490 | 70 | 70 | 69 | 100 | 174 | 179 | C60214D736****** | |
260 | 1.3 | 45 | 5.4 | 3220 | 80 | 70 | 59 | 116 | 95 | 100 | C60214D726****** | |
360 | 1.8 | 50 | 5 | 3280 | 70 | 62 | 52 | 116 | 120 | 125 | C60214D736****** | |
450 | 2 | 55 | 4.9 | 3390 | 67 | 59 | 50 | 116 | 140 | 145 | C60214D745****** | |
460 | 1.1 | 40 | 3.6 | 6540 | 100 | 94 | 79 | 116 | 158 | 163 | C60214D746****** | |
540 | 1.3 | 45 | 3.4 | 6690 | 89 | 79 | 66 | 116 | 174 | 179 | C60214D754****** | |
700 | 0.9 | 50 | 2.7 | 9950 | 100 | 94 | 79 | 116 | 230 | 235 | C60214D770****** | |
1300 | 1.05 | 60 | 2 | 14080 | 100 | 100 | 97 | 136 | 295 | 300 | C60214D813****** | |
● 技术参数Technical data (mm)
UN | CN | ESR | Ls | Rth | î | Imax | Dimension | Part number | ||||
40℃ | 50℃ | 60℃ | ΦD | H | H1 | |||||||
1500 | 90 | 3.3 | 45 | 5.6 | 1220 | 49 | 44 | 37 | 76 | 95 | 101 | C60215D690****** |
120 | 4.4 | 50 | 4.7 | 1200 | 47 | 41 | 35 | 76 | 120 | 126 | C60215D712****** | |
150 | 4.9 | 55 | 4.6 | 1230 | 45 | 39 | 33 | 76 | 140 | 146 | C60215D715****** | |
150 | 2.4 | 40 | 4.3 | 2340 | 66 | 58 | 49 | 76 | 155 | 161 | C60215D715****** | |
170 | 2.5 | 45 | 45 | 2310 | 65 | 58 | 49 | 76 | 174 | 180 | C60215D717****** | |
120 | 2.6 | 45 | 5.1 | 1630 | 58 | 51 | 43 | 86 | 95 | 101 | C60215D712****** | |
170 | 3.3 | 50 | 4.7 | 1690 | 54 | 48 | 40 | 86 | 120 | 126 | C60215D717****** | |
200 | 3 | 55 | 4.6 | 1720 | 57 | 50 | 43 | 86 | 136 | 142 | C60215D720****** | |
210 | 2 | 40 | 4.4 | 3280 | 70 | 63 | 53 | 86 | 155 | 161 | C60215D721****** | |
240 | 2.1 | 45 | 4.3 | 3260 | 70 | 62 | 53 | 86 | 174 | 180 | C60215D724****** | |
380 | 1.5 | 55 | 3 | 5080 | 70 | 70 | 70 | 86 | 252 | 258 | C60215D738****** | |
160 | 1.9 | 45 | 4.7 | 2150 | 67 | 58 | 47 | 100 | 95 | 100 | C60215D716****** | |
210 | 2.3 | 50 | 4.1 | 2080 | 65 | 56 | 46 | 100 | 120 | 125 | C60215D721****** | |
250 | 2.5 | 55 | 3.9 | 2140 | 64 | 55 | 45 | 100 | 136 | 141 | C60215D725****** | |
280 | 1.3 | 40 | 3.5 | 4320 | 70 | 70 | 67 | 100 | 155 | 160 | C60215D728****** | |
320 | 1.3 | 45 | 3.2 | 4300 | 70 | 70 | 68 | 100 | 174 | 179 | C60215D732****** | |
230 | 1.4 | 45 | 5.4 | 3120 | 77 | 68 | 57 | 116 | 95 | 100 | C60215D723****** | |
320 | 1.9 | 50 | 5 | 3180 | 68 | 60 | 51 | 116 | 120 | 125 | C60215D732****** | |
390 | 2.1 | 55 | 4.9 | 3200 | 66 | 58 | 49 | 116 | 140 | 145 | C60215D739****** | |
420 | 1.1 | 40 | 3.6 | 6550 | 100 | 94 | 79 | 116 | 158 | 163 | C60215D742****** | |
470 | 1.3 | 45 | 3.4 | 6280 | 89 | 79 | 66 | 116 | 174 | 179 | C60215D747****** | |
600 | 1 | 50 | 2.7 | 9200 | 100 | 89 | 75 | 116 | 230 | 235 | C60215D760****** | |
1100 | 1.1 | 60 | 2 | 12850 | 100 | 100 | 95 | 136 | 295 | 300 | C60215D811****** | |
● 技术参数Technical data (mm)
UN | CN | ESR | Ls | Rth | î | Imax | Dimension | Part number | ||||
40℃ | 50℃ | 60℃ | ΦD | H | H1 | |||||||
2000 | 110 | 3.5 | 65 | 4.5 | 1830 | 48 | 42 | 35 | 86 | 140 | 146 | C60220D711****** |
180 | 1.8 | 60 | 3.2 | 3660 | 78 | 69 | 58 | 86 | 225 | 231 | C60220D718****** | |
180 | 2.1 | 60 | 3.5 | 3660 | 70 | 61 | 52 | 116 | 120 | 125 | C60220D718****** | |
220 | 2.3 | 65 | 3.3 | 3660 | 69 | 60 | 51 | 116 | 140 | 145 | C60220D722****** | |
260 | 1.1 | 55 | 2.9 | 7360 | 100 | 93 | 79 | 116 | 174 | 179 | C60220D726****** | |
360 | 1.3 | 60 | 2.4 | 7330 | 100 | 93 | 79 | 116 | 225 | 230 | C60220D736****** | |
250 | 1.8 | 60 | 2.9 | 5090 | 78 | 67 | 55 | 136 | 120 | 125 | C60220D725****** | |
310 | 2 | 65 | 2.7 | 5150 | 77 | 66 | 54 | 136 | 140 | 145 | C60220D731****** | |
360 | 1 | 55 | 2.4 | 10200 | 100 | 99 | 81 | 136 | 175 | 180 | C60220D736****** | |
500 | 1.2 | 60 | 2.1 | 10100 | 100 | 98 | 80 | 136 | 225 | 230 | C60220D750****** | |
610 | 1.3 | 60 | 1.9 | 10100 | 100 | 98 | 80 | 136 | 265 | 270 | C60220D761****** | |
2200 | 90 | 3.7 | 65 | 4.5 | 1790 | 46 | 41 | 34 | 86 | 140 | 146 | C60222D690****** |
150 | 1.9 | 60 | 3.2 | 3670 | 77 | 68 | 57 | 86 | 225 | 231 | C60222D715****** | |
140 | 2.2 | 60 | 3.6 | 3420 | 67 | 59 | 50 | 116 | 120 | 125 | C60222D714****** | |
170 | 2.5 | 65 | 3.3 | 3390 | 66 | 58 | 49 | 116 | 140 | 145 | C60222D717****** | |
210 | 1.1 | 55 | 2.9 | 7150 | 100 | 91 | 77 | 116 | 174 | 179 | C60222D721****** | |
290 | 1.4 | 60 | 2.4 | 7100 | 100 | 91 | 77 | 116 | 225 | 230 | C60222D729****** | |
200 | 1.9 | 60 | 2.9 | 4890 | 76 | 66 | 54 | 136 | 120 | 125 | C60222D720****** | |
250 | 2.1 | 65 | 2.7 | 4990 | 75 | 65 | 53 | 136 | 140 | 145 | C60222D725****** | |
290 | 1 | 55 | 2.4 | 9870 | 100 | 97 | 79 | 136 | 175 | 180 | C60222D729****** | |
400 | 1.2 | 60 | 2.1 | 9790 | 100 | 96 | 79 | 136 | 225 | 230 | C60222D740****** | |
500 | 1.4 | 60 | 1.9 | 9990 | 100 | 97 | 79 | 136 | 265 | 270 | C60222D750****** | |
2400 | 75 | 3.9 | 65 | 4.5 | 1770 | 45 | 40 | 33 | 86 | 140 | 146 | C60224D675****** |
120 | 2 | 60 | 3.2 | 3470 | 74 | 65 | 55 | 86 | 225 | 231 | C60224D712****** | |
120 | 2.3 | 60 | 3.6 | 3470 | 66 | 58 | 49 | 116 | 120 | 125 | C60224D712****** | |
140 | 2.6 | 65 | 3.3 | 3310 | 64 | 56 | 47 | 116 | 140 | 145 | C60224D714****** | |
170 | 1.2 | 55 | 2.9 | 6840 | 100 | 89 | 75 | 116 | 174 | 179 | C60224D717****** | |
240 | 1.4 | 60 | 2.5 | 6940 | 100 | 89 | 75 | 116 | 225 | 230 | C60224D724****** | |
160 | 2 | 60 | 3 | 4630 | 73 | 63 | 52 | 136 | 120 | 125 | C60224D716****** | |
200 | 2.2 | 65 | 2.8 | 4720 | 72 | 63 | 51 | 136 | 140 | 145 | C60224D720****** | |
240 | 1.1 | 55 | 2.5 | 9660 | 100 | 95 | 78 | 136 | 175 | 180 | C60224D724****** | |
330 | 1.3 | 60 | 2.1 | 9550 | 100 | 94 | 77 | 136 | 225 | 230 | C60224D733****** | |
410 | 1.4 | 60 | 1.9 | 9690 | 100 | 95 | 77 | 136 | 265 | 270 | C60224D741****** | |
● 技术参数Technical data (mm)
UN | CN | ESR | Ls | Rth | î | Imax | Dimension | Part number | ||||
40℃ | 50℃ | 60℃ | ΦD | H | H1 | |||||||
2600 | 63 | 4.1 | 65 | 4.5 | 1730 | 43 | 38 | 32 | 86 | 140 | 146 | C60226D663****** |
100 | 2.1 | 60 | 3.2 | 3370 | 72 | 63 | 53 | 86 | 225 | 231 | C60226D710****** | |
100 | 2.4 | 60 | 3.6 | 3370 | 64 | 57 | 48 | 116 | 120 | 125 | C60226D710****** | |
120 | 2.7 | 65 | 3.3 | 3310 | 63 | 55 | 47 | 116 | 140 | 145 | C60226D712****** | |
140 | 1.2 | 55 | 2.9 | 6570 | 98 | 87 | 73 | 116 | 174 | 179 | C60226D714****** | |
200 | 1.5 | 60 | 2.5 | 6750 | 99 | 87 | 73 | 116 | 225 | 230 | C60226D720****** | |
140 | 2 | 60 | 3 | 4730 | 73 | 63 | 51 | 136 | 120 | 125 | C60226D714****** | |
170 | 2.3 | 65 | 2.8 | 4690 | 71 | 62 | 50 | 136 | 140 | 145 | C60226D717****** | |
200 | 1.1 | 55 | 2.5 | 9390 | 100 | 94 | 76 | 136 | 175 | 180 | C60226D720****** | |
280 | 1.3 | 60 | 2.1 | 9590 | 100 | 93 | 76 | 136 | 225 | 230 | C60226D728****** | |
340 | 1.5 | 60 | 1.9 | 9380 | 100 | 92 | 76 | 136 | 265 | 270 | C60226D734****** | |
2800 | 54 | 4.3 | 65 | 4.5 | 1710 | 42 | 37 | 32 | 86 | 140 | 146 | C60228D654****** |
88 | 2.2 | 60 | 3.2 | 3430 | 71 | 62 | 53 | 86 | 225 | 231 | C60228D688****** | |
86 | 2.5 | 60 | 3.6 | 3350 | 63 | 56 | 47 | 116 | 120 | 125 | C60228D686****** | |
100 | 2.9 | 65 | 3.4 | 3180 | 61 | 53 | 45 | 116 | 140 | 145 | C60228D710****** | |
120 | 1.3 | 55 | 2.9 | 6500 | 97 | 85 | 72 | 116 | 174 | 179 | C60228D712****** | |
170 | 1.5 | 60 | 2.5 | 6620 | 96 | 85 | 72 | 116 | 225 | 230 | C60228D717****** | |
120 | 2.1 | 60 | 3 | 4680 | 71 | 62 | 51 | 136 | 120 | 125 | C60228D712****** | |
140 | 2.4 | 65 | 2.8 | 4450 | 69 | 59 | 49 | 136 | 140 | 145 | C60228D714****** | |
170 | 1.1 | 55 | 2.5 | 9210 | 100 | 92 | 75 | 136 | 175 | 180 | C60228D717****** | |
240 | 1.3 | 60 | 2.1 | 9350 | 100 | 92 | 75 | 136 | 225 | 230 | C60228D724****** | |
290 | 1.5 | 60 | 1.9 | 9230 | 100 | 91 | 74 | 136 | 265 | 270 | C60228D729****** | |
3000 | 46 | 4.6 | 65 | 4.6 | 1570 | 41 | 36 | 30 | 86 | 140 | 146 | C60230D646****** |
75 | 2.3 | 60 | 3.2 | 3150 | 69 | 61 | 51 | 86 | 225 | 231 | C60230D675****** | |
74 | 2.6 | 60 | 3.6 | 3110 | 62 | 54 | 46 | 116 | 120 | 125 | C60230D674****** | |
90 | 2.9 | 65 | 3.3 | 3090 | 60 | 53 | 45 | 116 | 140 | 145 | C60230D690****** | |
100 | 1.3 | 55 | 3 | 5840 | 94 | 83 | 70 | 116 | 174 | 179 | C60230D710****** | |
140 | 1.6 | 60 | 2.5 | 5880 | 93 | 82 | 69 | 116 | 225 | 230 | C60230D714****** | |
100 | 2.2 | 60 | 3 | 4200 | 69 | 60 | 49 | 136 | 120 | 125 | C60230D710****** | |
120 | 2.5 | 65 | 2.8 | 4120 | 67 | 58 | 47 | 136 | 140 | 145 | C60230D712****** | |
140 | 1.2 | 55 | 2.5 | 8180 | 100 | 89 | 73 | 136 | 175 | 180 | C60230D714****** | |
200 | 1.4 | 60 | 2.2 | 8400 | 100 | 89 | 73 | 136 | 225 | 230 | C60230D720****** | |
250 | 1.6 | 60 | 1.9 | 8580 | 100 | 89 | 73 | 136 | 265 | 270 | C60230D725****** | |
● 技术参数Technical data (mm)
UN | CN | ESR | Ls | Rth | î | Imax | Dimension | Part number | ||||
40℃ | 50℃ | 60℃ | ΦD | H | H1 | |||||||
3200 | 40 | 4.9 | 65 | 4.6 | 1470 | 40 | 35 | 30 | 86 | 140 | 146 | C60232D640****** |
65 | 2.4 | 60 | 3.2 | 2930 | 67 | 59 | 50 | 86 | 225 | 231 | C60232D665****** | |
64 | 2.7 | 60 | 3.6 | 2880 | 60 | 53 | 45 | 116 | 120 | 125 | C60232D664****** | |
78 | 3.1 | 65 | 3.4 | 2870 | 59 | 52 | 44 | 116 | 140 | 145 | C60232D678****** | |
92 | 1.3 | 55 | 3 | 5760 | 94 | 83 | 70 | 116 | 174 | 179 | C60232D692****** | |
120 | 1.7 | 60 | 2.5 | 5410 | 91 | 80 | 68 | 116 | 225 | 230 | C60232D712****** | |
90 | 2.2 | 60 | 3 | 4050 | 69 | 59 | 49 | 136 | 120 | 125 | C60232D690****** | |
110 | 2.5 | 65 | 2.8 | 4050 | 67 | 58 | 47 | 136 | 140 | 145 | C60232D711****** | |
120 | 1.2 | 55 | 2.6 | 7520 | 100 | 87 | 71 | 136 | 175 | 180 | C60232D712****** | |
180 | 1.4 | 60 | 2.2 | 8110 | 100 | 89 | 72 | 136 | 225 | 230 | C60232D718****** | |
220 | 1.6 | 60 | 1.9 | 8100 | 100 | 88 | 72 | 136 | 265 | 270 | C60232D722****** | |
3600 | 28 | 4 | 65 | 4.6 | 1650 | 43 | 38 | 32 | 86 | 140 | 146 | C60236D628****** |
45 | 2 | 60 | 3.3 | 3290 | 72 | 64 | 54 | 86 | 225 | 231 | C60236D645****** | |
44 | 2.3 | 60 | 3.7 | 3220 | 64 | 57 | 48 | 116 | 120 | 125 | C60236D644****** | |
54 | 2.7 | 65 | 3.4 | 3190 | 63 | 55 | 47 | 116 | 140 | 145 | C60236D654****** | |
88 | 1.4 | 60 | 2.5 | 6440 | 98 | 87 | 73 | 116 | 174 | 179 | C60236D688****** | |
110 | 1.6 | 60 | 2.3 | 6510 | 97 | 85 | 72 | 116 | 225 | 230 | C60236D711****** | |
61 | 2 | 60 | 3 | 4460 | 72 | 63 | 51 | 136 | 120 | 125 | C60236D661****** | |
75 | 2.3 | 65 | 2.8 | 4440 | 71 | 61 | 50 | 136 | 140 | 145 | C60236D675****** | |
120 | 1.3 | 60 | 2.2 | 8780 | 100 | 92 | 75 | 136 | 225 | 230 | C60236D712****** | |
150 | 1.5 | 60 | 2 | 8880 | 100 | 92 | 75 | 136 | 265 | 270 | C60236D715****** | |
4000 | 24 | 4.2 | 65 | 4.6 | 1650 | 42 | 37 | 32 | 86 | 140 | 146 | C60240D624****** |
38 | 2.1 | 60 | 3.3 | 3230 | 70 | 62 | 53 | 86 | 225 | 231 | C60240D638****** | |
37 | 2.4 | 60 | 3.7 | 3140 | 63 | 55 | 47 | 116 | 120 | 125 | C60240D637****** | |
46 | 2.8 | 65 | 3.4 | 3160 | 61 | 54 | 46 | 116 | 140 | 145 | C60240D646****** | |
74 | 1.5 | 60 | 2.5 | 6290 | 96 | 85 | 72 | 116 | 174 | 179 | C60240D674****** | |
92 | 1.7 | 60 | 2.3 | 6330 | 94 | 83 | 70 | 116 | 225 | 230 | C60240D692****** | |
52 | 2.1 | 60 | 3 | 4420 | 71 | 62 | 50 | 136 | 120 | 125 | C60240D652****** | |
64 | 2.3 | 65 | 2.8 | 4400 | 69 | 60 | 49 | 136 | 140 | 145 | C60240D664****** | |
100 | 1.3 | 60 | 2.2 | 8500 | 100 | 90 | 73 | 136 | 225 | 230 | C60240D710****** | |
130 | 1.5 | 60 | 2 | 8940 | 100 | 91 | 37 | 136 | 265 | 270 | C60240D713****** | |

kaiyun开云官方网页版专业的科研机构和一支高水平 的研发团队

kaiyun开云官方网页版众多国家认可资质

宏大事业感召人,优厚待遇吸引人,优 秀文化凝聚人,创造条件成就人

为客户提供优质、安全、环保、高效的产品和服务


市场部:671384967
13775603525(肖小姐)